Appartement Haussmannien à Paris 3e Restructuration et réhabilitation d’un 2 pièces

Pg Restructuration d'un appartement . L Paris . Mi Conception . S 50 m2 .
* Localisation - Client - Date - Mission - Surface - Avancement - Montant de travaux - Montant d'etude - Partenaires - Programme - Concours - Information
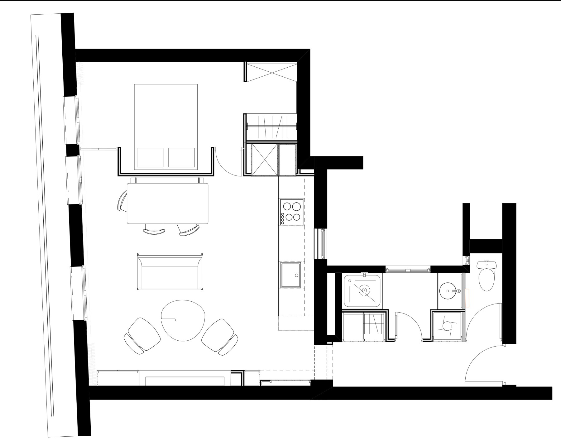
La mission concerne la réhabilitation et la restructuration d’un appartement de 50m2 dans le 3ème arrondissement de Paris. Le programme comporte une cuisine, une salle de bain, une chambre avec dressing et un salon.
Le projet propose d’agrandir au maximum la pièce à vivre avec une cuisine ouverte, et une chambre réduite au minimum. Un système de cloison et de portes coulissantes en accordéon permet de vivre l’appartement comme un studio ou comme un deux pièces, au choix.