Maison de ville à Arcueil Restructuration, extension et rénovation énergétique
Pg Restructuration et extension d'une maison . L Arcueil . Mi Complète . Av Chantier en cours . S 130 m2 .
* Localisation - Client - Date - Mission - Surface - Avancement - Montant de travaux - Montant d'etude - Partenaires - Programme - Concours - Information
Construite en zone de carrière sur la colline d’Arcueil, cette maison des années 60 est située dans une ruelle constituée de maisons de villes, rare îlot préservé au sein d’une commune en pleine transformation. A la fois proche des transports en commun reliant la capitale en moins d’un quart d’heure et havre de quiétude, la situation exceptionnelle du lieu constitue un enjeu majeur de notre réflexion. Construite sur deux niveaux avec combles et un jardin en fond de parcelle, la maison est restructurée afin de simplifier les parcours intérieurs et la liaison avec l’extérieur. Baies et façades sont modifiées pour apporter de la lumière, améliorer le confort énergétique, et ouvrir l’espace sur le jardin. Nous cherchons à prolonger au sein de la maison, le caractère déjà intimiste de cette situation urbaine.
Au coeur du projet
Prolonger le sol sur les surfaces verticales, joindre le mobilier et les parcours par une correspondance du matériau chêne, aligner les niveaux et les parois.
Souligner les lignes par des dispositifs lumineux intégrés, accompagner les parcours par de la lumière naturelle directe ou en second jour selon la nature des pièces, jouer sur l'opacité et la lumière traversante pour marquer les seuils sans cloisonner.
Chêne naturel
Grès céram structuré
Parquet synthétique
Teinté dans la masse
Verre translucide
Aluminium et acier laqués
Le chantier
Rendre traversant, de la rue au jardin
Avril 2019
Diagnostic avant achat
Juin 2019
Conception du projet
Septembre 2019
Mise au point des marchés de travaux
Octobre 2019
Démmarage des travaux
Avril 2020
Livraison du chantier
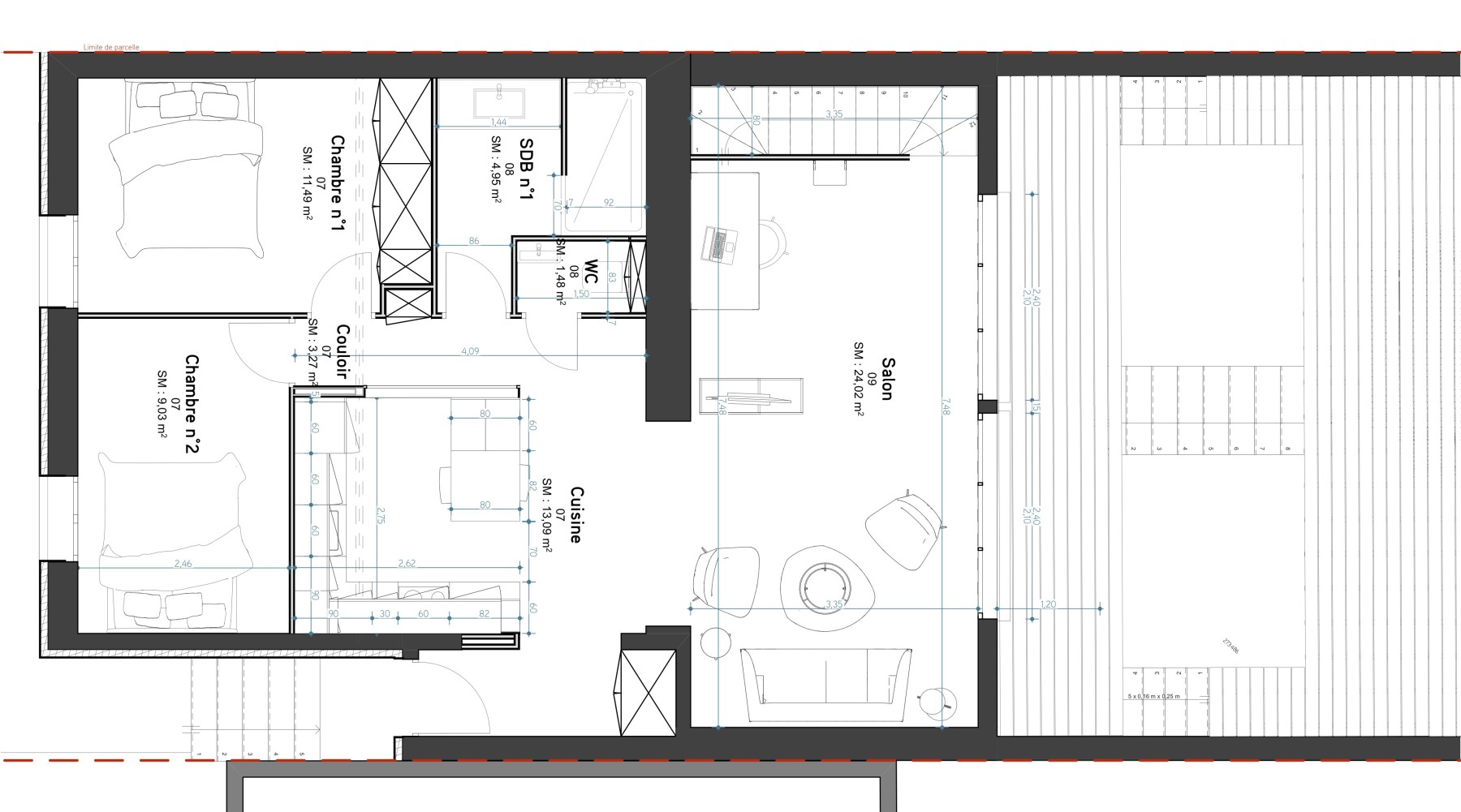
Maison construite en 1960, le plan est basé sur un modèle de pavillon de constructeur qui a été modifié par à-coups au fil des années. La situation avant projet présentait une organisation relativement complexe, faite de parcours non optimisés et d'espaces sombres, comme étouffés entre la rue et un jardin encombré. Ventilations, clarté et ouverture sur l'extérieur ont été des principes moteurs du projet.
Dès le départ, les travaux ont été conditionnés par la rénovation de certains ouvrages essentiels à l'édifice tels que la reprise de fondations, la réfection complète du réseau d'eaux pluviales, la séparation des réseaux d'eaux vannes et d'eaux usées avec raccordement à l'assainissement collectif, ainsi que l'isolation extérieure de l'édifice. L'enjeu lié à ces ouvrages techniques importants a constitué un levier pour repenser l'ensemble de l'édifice et pousser sa métamorphose en une architecture contemporaine.
La question des sols est centrale. Elle intervient en permanence tout au long du projet, à la fois dans les dispositifs structurels et dans l'aspect environnemental avec l'infiltration des eaux pluviales en pleine terre. Le jardin n'est pas seulement un morceau de terrain laissé libre. Il permet, en tant qu'ouvrage technique, d'assurer une symbiose éco-responsable de la maison avec son environnement. La terrasse en platelage sur lambourdes bois assure cette infiltration et la récupération des eaux pluviales par un dispositif de puisard muni d'une pompe de relevage permet un arrosage automatique.
La problématique de la zone carrière est récurante à Arcueil comme dans plusieurs communes Francilienne. Les maisons anciennes n'ont généralement pas bénéficié à l'époque de leur construction des études géotechniques et des sondages de sol nécessaires qui sont aujourd'hui quasiment obligatoires. Notre responsabilité d'architecte nous engage à coordonner l'ensemble des bureaux d'études pour sécuriser le projet et mettre en oeuvre les meilleures solutions pour engager des travaux de rénovation.
La rénovation intérieure de l'édifice s'est faite avec des matériaux d'origine Française et européenne tels que le chêne des forets françaises, de la céramique italienne et des peintures bio-sourcées françaises. L'ensemble des menuiseries et ferronneries ont été réalisées sur place et dans des ateliers franciliens.
Plus de 90% de la partie structurelle de l'édifice a été préservée, afin de permettre une économie de travaux. Les dispositifs énergétiques solaires existants ont été modifiés pour les rendre compatibles avec le nouveau réseau électrique et assurer ainsi un système mixte.
L'isolation par l'extérieur de l'édifice à permis de résoudre deux problématiques, la redéfinition de l'aspect esthétique des façades et l'amélioration énergétique de la maison.