Maison de ville à Issy-les-Moulineaux Extension et surélévation d'une maison de meulière de 1920
Maison de villeRénovationSurélévationPg Restructuration et surélévation d’une maison de ville . L Issy-les-Moulineaux(92) . Mi Complète . Av Livré . S 143 m² . Mt 345000€ .
* Localisation - Client - Date - Mission - Surface - Avancement - Montant de travaux - Montant d'etude - Partenaires - Programme - Concours - Information
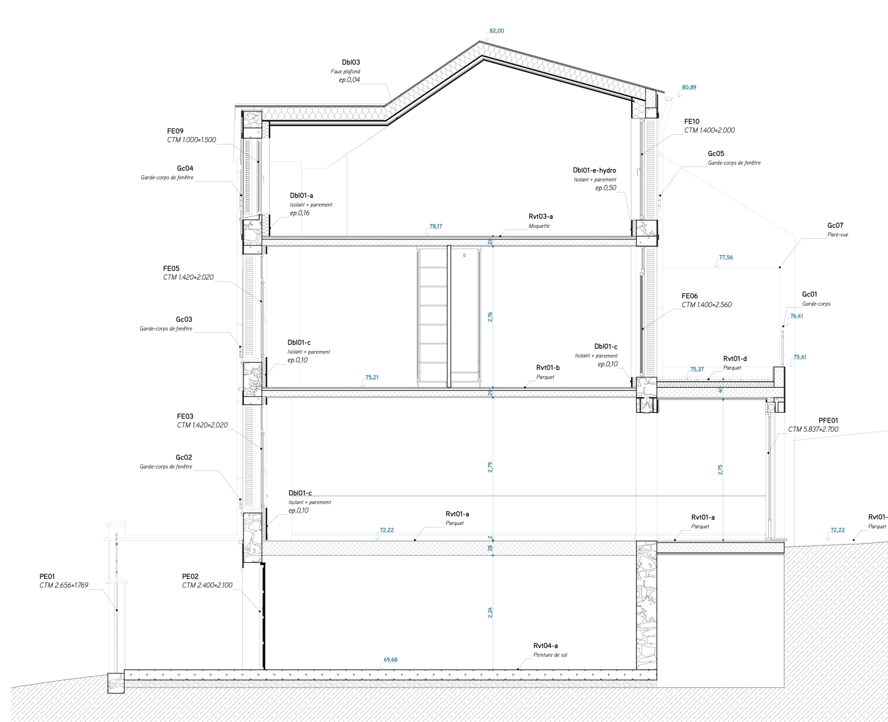
Cette meulière classique construite en 1920, jonchée sur les hauteurs d'Issy les Moulineaux et dominant tout l'Ouest parisien se structure verticalement, installée sur les deux limites de sa parcelle. Son jardin en longueur, en revers de la rue, lui confère une ouverture paysagère en coeur l'îlot. Aménagée sur une emprise carrée et des plateaux modestes, une extension sur jardin donne à l'étage de vie un confort contemporain. Se succèdent salon, salle-à manger et cuisine ouverte sur le paysage arboré. A l'étage une terrasse offre un regard sur l'extérieur depuis les chambres.
La surélévation des combles existants permet d'accroître la hauteur sous-plafond d'un mètre et leur confère une pleine et entière habitabilité, ouvrant ainsi des vues sur le jardin et de l'autre côté sur le grand paysage urbain, jusqu'à la défense au loin. La matérialité des façades, faites de meulières et de faux-colombages, est prononcée dans la surélévation et l'extension sur jardin, conclusion d'une réflexion croisée entre un caractère patrimoniale et des usages contemporains.
Des usages discrets
Contrastes de l'ouvert à l'intime
Noblesse du détail
À la recherche d'une finition
L'avant
Un batisse en attente
Le chantier