Rénovation d'un appartement en duplex à Paris 7e Transformation et réhabilitation d'un appartement ancien sous combles
ParisRénovationDuplexComblesPatrimoineAncienPg Création d'une duplex, réhabilitation et restructuration de combles anciens. . L Paris(75) . Mi Complète . Av Livré . S 80 m² .
* Localisation - Client - Date - Mission - Surface - Avancement - Montant de travaux - Montant d'etude - Partenaires - Programme - Concours - Information
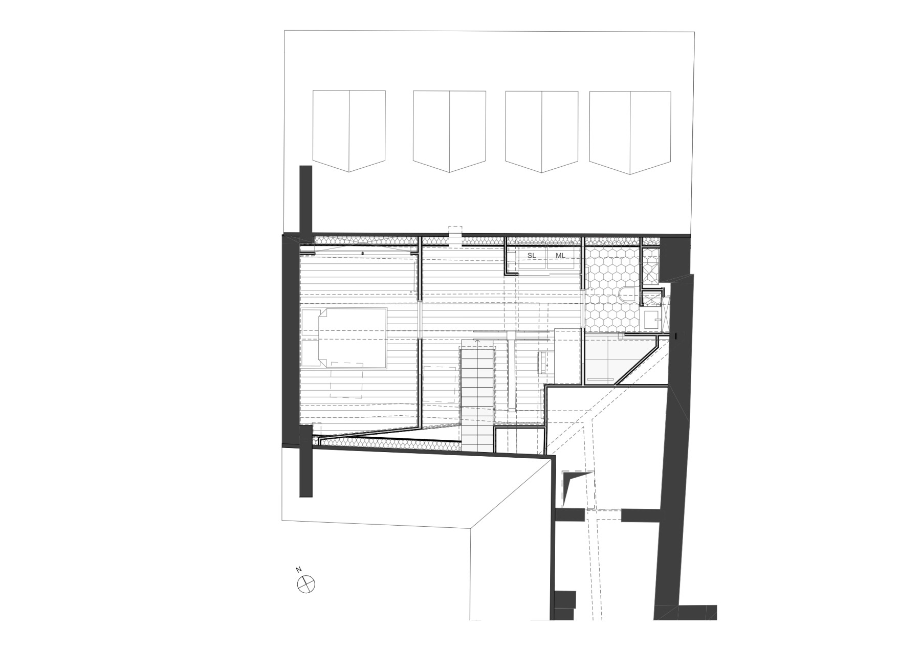
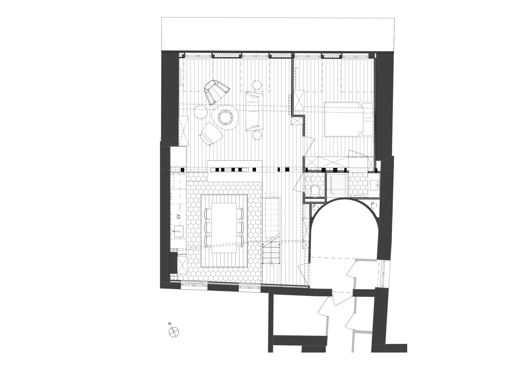
En regard de la Basilique Sainte-Clotilde du 7ème arrondissement de Paris, cet appartement en duplex constitue le dernier niveau d'un immeuble construit en 1850. Ce projet interroge la place actuelle du patrimoine architectural à bien des égards. Ceux de l'édifice transformé et de son inscription dans un quartier riche de monuments historiques. Plongeant d'un côté sur la basilique et de l'autre sur un immeuble particulier classé, ce duplex est issu de la réunion de trois chambres de bonnes et d'un comble inhabité. D'une surface totale de 70m2, sa conception soulève des problématiques d'aménagement au sein d'une architecture à la géométrie irrégulière et d'une sous-pente aiguë courant sur les deux niveaux d'habitation.
Un escalier suspendu
Détacher les volumes
Optimiser les surfaces
Comment profiter du moindre volume
Affiner la matière
Des bordures de bois, de métal et de terre cuite
Creuser l'épaisseur
Rangements intégrés et alcôves sur mesures
Le calendrier
Juillet 2020
Démarrage de la conception
Novembre 2020
Lancement des études d'ingénieries
Décembre 2020
Choix des entreprises
Janvier 2021
Lancement des travaux
Mai 2021
Opération de pré-récreption
Juin 2021
Livraison du chantier
Le chantier