Aménagement d'un commerce éco-responsable à Bordeaux Réhabilitation et aménagement d'une épicerie éco-responsable

CommerceRénovationBordeauxPg Cet établissement singulier est situé au 193 rue Fondaudège à Bordeaux. Baptisé du nom évocateur de Jabot’s, cet espace novateur se présente comme une épicerie éco-responsable, un salon de thé, et un lieu dédié à une variété d'événements. . L Bordeaux (33) . Mi Faisabilité . Av En cours . S 173 m² .
* Localisation - Client - Date - Mission - Surface - Avancement - Montant de travaux - Montant d'etude - Partenaires - Programme - Concours - Information
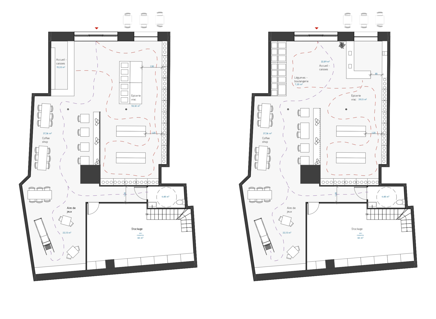
Cette épicerie s'évertue à propose des produits défendant un profond respect de l'environnement. Chez Jabot’s, la sélection de produits se distingue par son caractère éco-responsable, mettant en avant majoritairement des articles français et locaux. L'établissement propose un assortiment varié, comprenant des produits en vrac, des articles d'entretien et d'hygiène. Sont mis en avant des produits de la Nouvelle-Aquitaine. Jabot’s ne se limite pas à être une simple épicerie, puisque ce lieu offre également la possibilité de déguster des mets sur place, dans un espace aménagé façon salon de thé. L'ensemble des pâtisseries et des plats sont confectionnés maison à partir des produits de l'épicerie. À noter également que l'établissement est résolument accueillant pour les enfants, doté d'un toboggan, d'une maisonnette en bois et d'une petite cuisine spécialement aménagée pour divertir les plus jeunes.
En vue d'enrichir ce lieu de vie, sont régulièrement organisés des événements tels que des cours de danse ou de yoga, des spectacles, des pop-up stores éphémères, et des ateliers destinés aux enfants.
La conception