8 logements collectifs à Montreuil

RéhabilitationRestructurationSurélévationPg Réhabilitation, extension et surélévation de deux immeubles de logements collectifs à Montreuil pour le bailleur social Vilogia. . L Montreuil . Mi Complète . Co Lauréat . Av En cours . S 400 m² . Mt 1400000€HT .
* Localisation - Client - Date - Mission - Surface - Avancement - Montant de travaux - Montant d'etude - Partenaires - Programme - Concours - Information
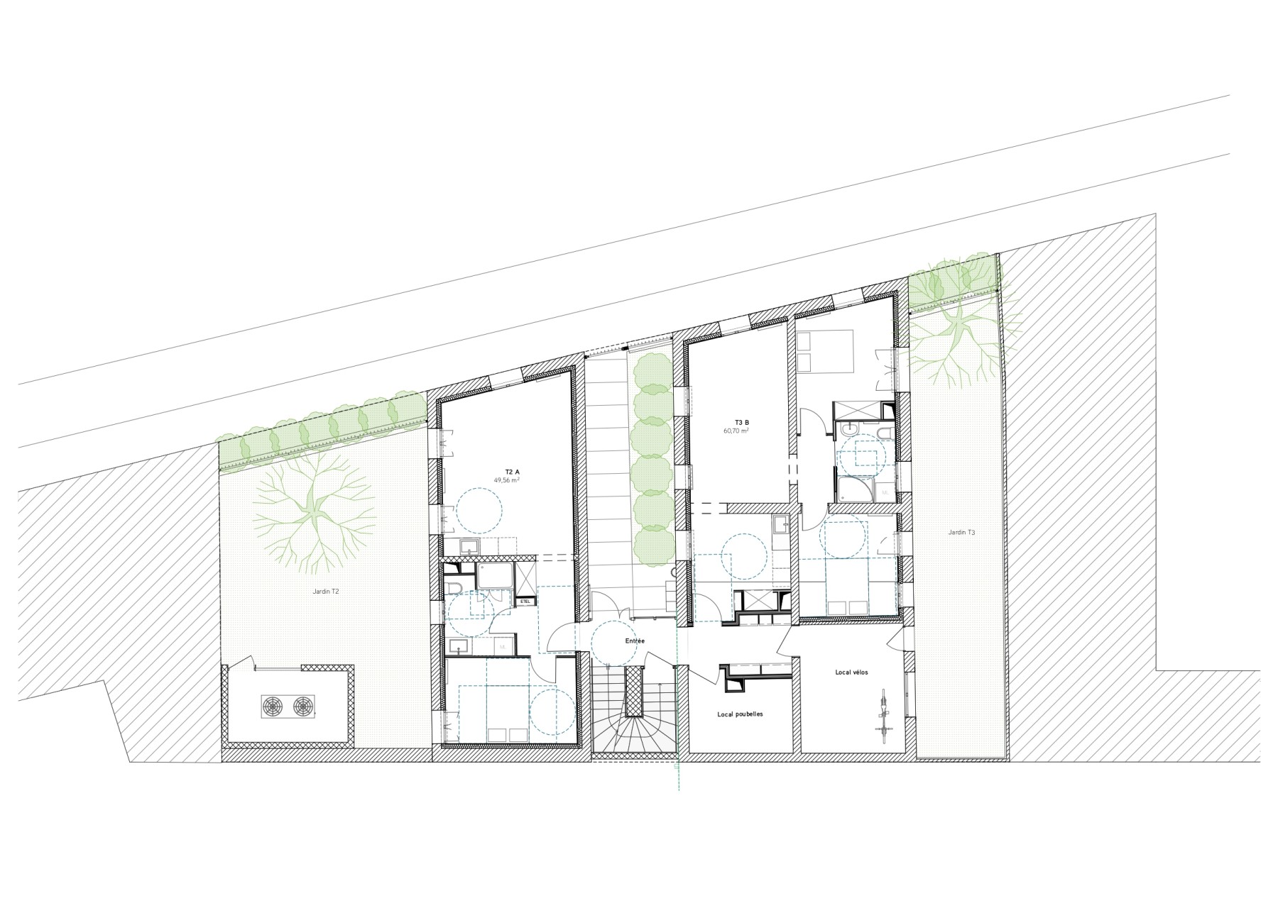
Située dans le Bas-Montreuil cette opération de logement sociale est entièrement restructurée pour être adaptée aux normes actuelles du logement et faire peau neuve. Les façades, répertoriées d'intérêt patrimoniale sont préservées et la surélévation de l'aile droite respecte l'architecture classique en moellons enduit et chaînage en pierres de tailles peintes. Les circulations communes sont externalisés et placées en fond de parcelle dans une cage d'escalier qui permet la liaison des deux bâtiment sur l'ensemble des niveaux. Un objectif majeur de réemploi est mise en oeuvre concernant les matériaux présents sur site. La désimperméabilisation des sols est un enjeu premier, avec la création d'espaces verts de pleine terre et de jardin privatifs.