4 logements à Malakoff Conception d’un petit immeuble collectif

4 logements à Malakoff

Pg Conception d'un immeuble de 4 logements à Malakoff . L Malakoff (92), France . Mi Complète . S 250 m2 .

* Localisation - Client - Date - Mission - Surface - Avancement - Montant de travaux - Montant d'etude - Partenaires - Programme - Concours - Information

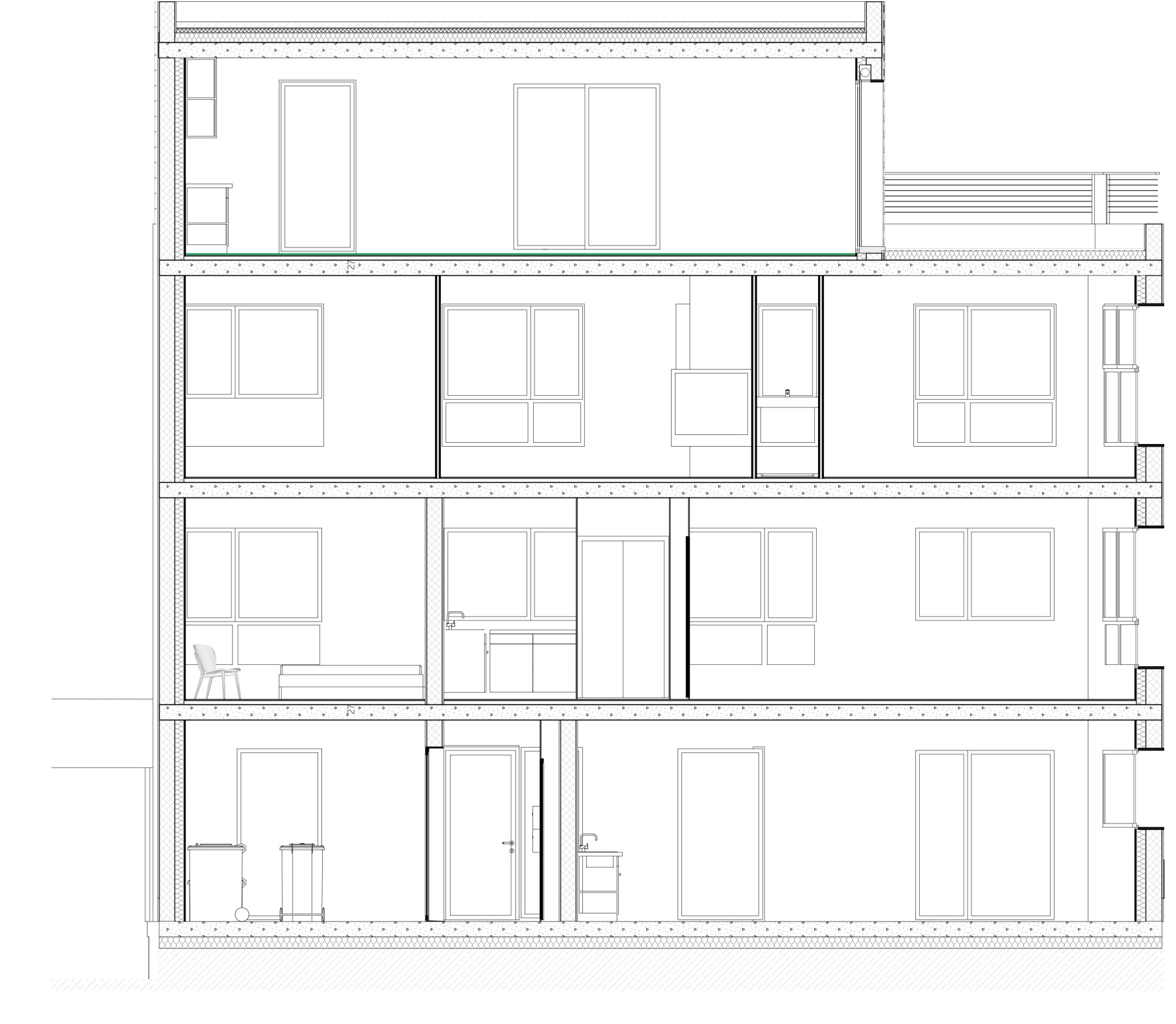
Le projet concerne la conception d’un immeuble de logements répartis sur 3 niveaux, dont un appartement en duplex avec terrasse.
Situé dans un quartier à dominante pavillonnaire de Malakoff, le projet s’intègre dans la dynamique de densification des communes limitrophes parisiennes.
Entouré par les arbres et arbustes de la Coulée verte du Sud parisien, le rez-de-jardin est au cœur des espaces verts de Malakoff.