Cible Formation, Paris 8e Aménagement et décoration des locaux d’un institut de formation

Cible Formation, Paris 8e

Pg Aménagement et décoration des locaux d’un institut de formation à la médecine esthétique . L Paris (75) . Mi Conception . S 230 m² .

* Localisation - Client - Date - Mission - Surface - Avancement - Montant de travaux - Montant d'etude - Partenaires - Programme - Concours - Information

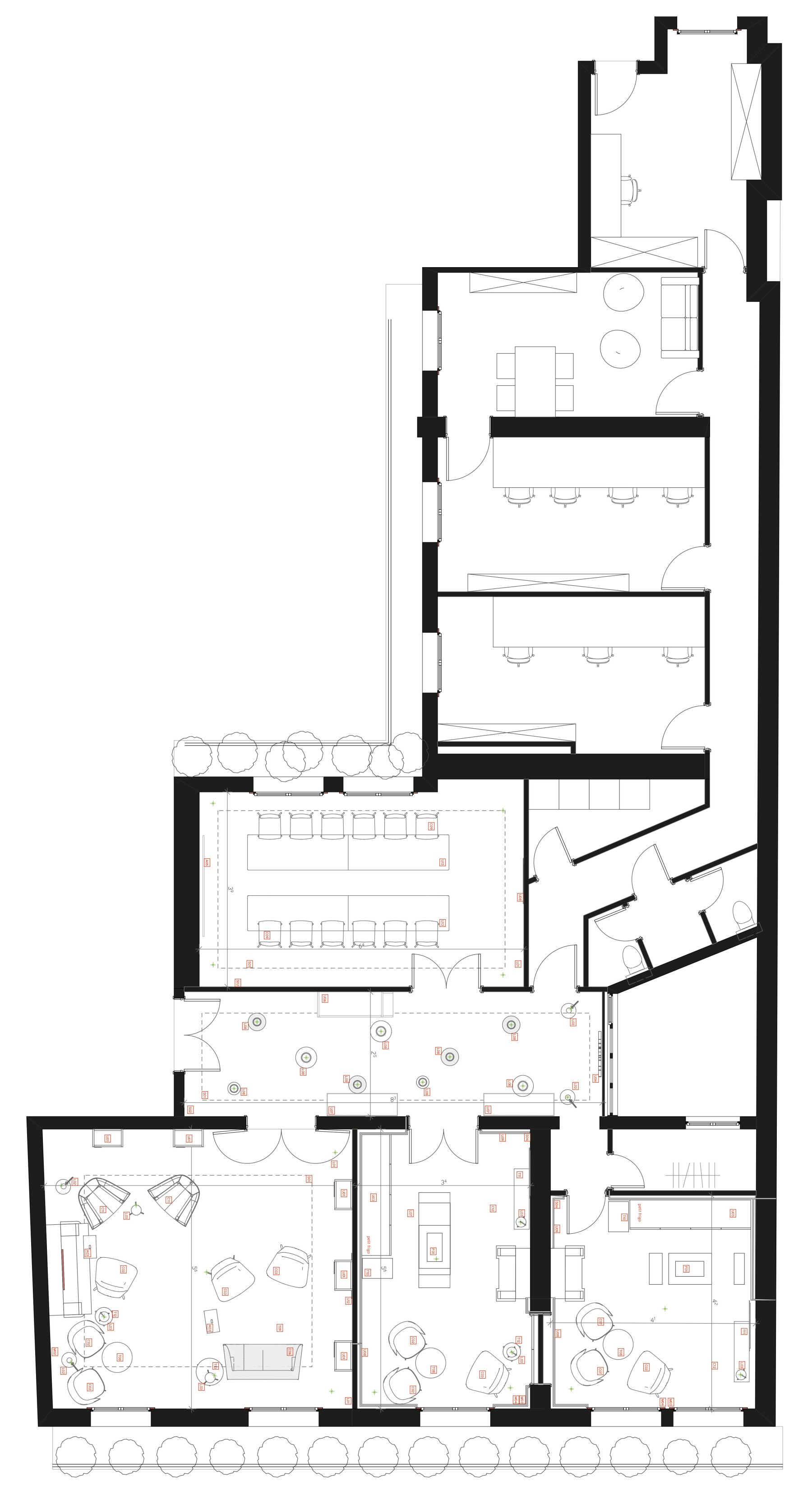
Ce projet concerne l’aménagement et la décoration d’un espace de bureaux de 230m2 situé dans le 8ème arrondissement de Paris.
Le programme comporte un espace accessible au public (accueil, salle de réunion & de formation pouvant accueillir de 10 à 15 personnes, un salon aménagé en plusieurs espaces de conforts pour 6 personnes, deux salles d’injections avec coins repos, et des sanitaires), ainsi qu’un espace de bureau privé (trois bureaux, une salle de détente et une cuisine).
Le style est à la fois décontracté et précieux, avec des couleurs bleu nuit, bois et doré, et l’utilisation de formes géométriques dans les luminaires et mobiliers, comme dans les papiers peints.