Cour Oasis de l'école maternelle Charles Perrault - Viry-Chatillon Réfection de la cour de l’école

Cour Oasis de l'école maternelle Charles Perrault - Viry-Chatillon

Cours oasisRéfectionIlots de fraicheurPg Réfection de la cour de l’école . L Viry-Chatillon . S 900 m² . Me 250 000 € .

* Localisation - Client - Date - Mission - Surface - Avancement - Montant de travaux - Montant d'etude - Partenaires - Programme - Concours - Information

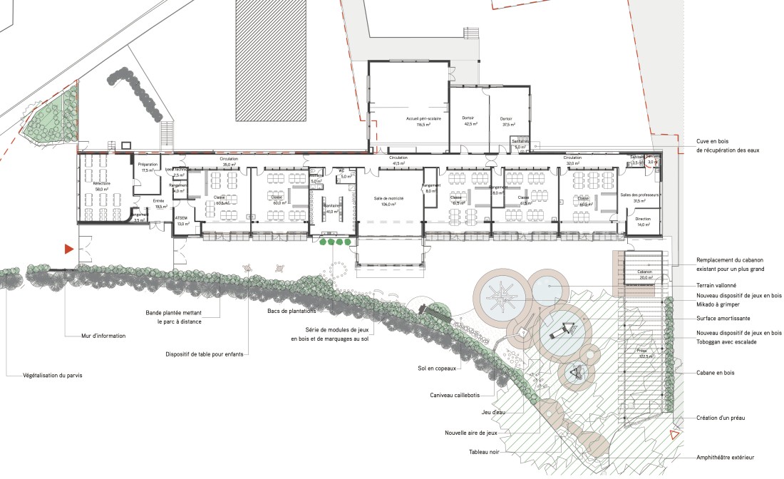
L’école maternelle Charles Perrault est située dans la commune de Viry-Chatillon. Après sa réhabilitation que nous réalisons, il est aujourd’hui l’heure de la réfection de sa cour.
A l’image de plus en plus de cour d’école, cette cour répondra au principe de cour résilientes, dites «cours Oasis». Le remplacement et la prolifération des structures de jeux actuelles par des structures en bois permettra de stimuler d’avantage la motricité des élèves de cette école maternelle.
La création d’un préau se reliant par son écriture architecturale à celle de l’école réhabilitée permettra de créer un nouvel espace couvert mais ouvert nécessaire au bon fonctionnement de l’école.
De plus, la création d’îlots de fraîcheur par un foisonnement de végétaux sera un des points importants de cette «nouvelle» cour.