École Sadi Carnot - Pantin Etude de programmation et faisabilité pour une école élémentaire

École Sadi Carnot - Pantin

ProgrammationRéorganisationPg Etude de programmation et faisabilité pour une école élémentaire . L Pantin . Mi Programmation .

* Localisation - Client - Date - Mission - Surface - Avancement - Montant de travaux - Montant d'etude - Partenaires - Programme - Concours - Information

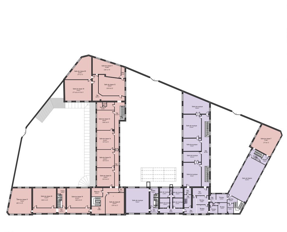
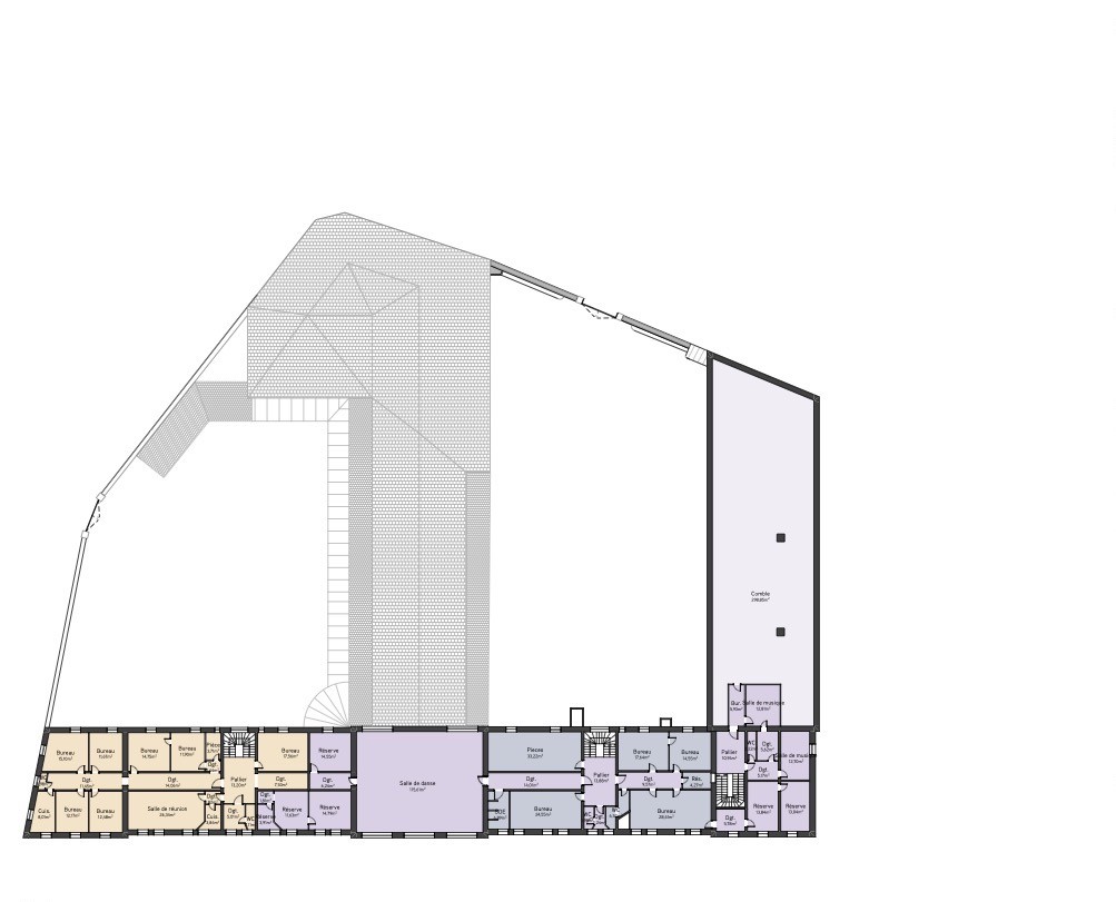
Étude de programmation et de faisabilité pour l’implantation d’une école dans un ancien conservatoire de musique à Pantin. Réflexion autour des programmes et leur articulation qui s’implante dans un bâtiment existant.