Restaurant Cadama, Paris 2e Restructuration lourde d’un restaurant de 3 étages en site classé

RestaurantParisRénovationPg Restructuration complète d'un restaurant . L 10 Passage des Panoramas Paris 2e . Mi Complète . Av Livré . S 70 m² . Pa Atelier J&J (Designer Mobilier) Pierre de Belgique (Identité visuelle) .
* Localisation - Client - Date - Mission - Surface - Avancement - Montant de travaux - Montant d'etude - Partenaires - Programme - Concours - Information
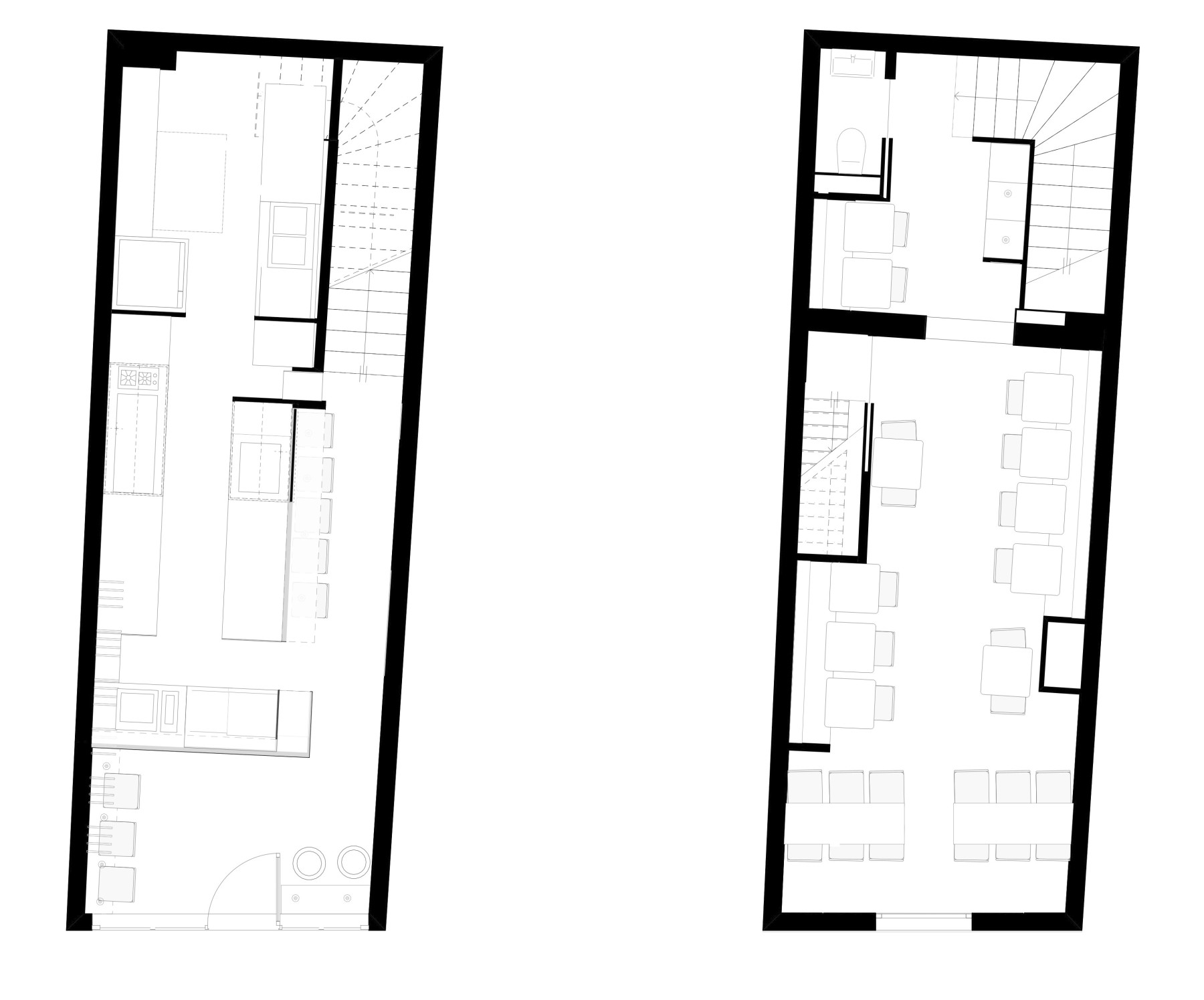
Ce projet de restaurant sur trois niveaux, situé Passage des Panoramas dans le 2eme arrondissement de Paris, propose un aménagement de l’espace aux lignes simples, avec des matériaux bruts (béton, bois) et des couleurs franches.
La restructuration totale de l’espace existant permet d’optimiser les surfaces et la circulation. L’escalier existant est déplacé en fond de salle pour libérer l’accès au comptoir et donner une vue sur la cuisine ouverte.
Le parcours vers la salle du haut est accompagné par les éléments graphiques des matériaux choisis (béton matricé du bar et des murs, veinage du noyer sur le comptoir).
Le chantier