Maison à Chatillon Restructuration, surélévation et rénovation énergétique d’un pavillon

rénovation énergétiquesurélévationterrassePg Restructuration et surélévation d'une maison . L Chatillon . Mi Complète . Av Études en cours . S 240 m2 .
* Localisation - Client - Date - Mission - Surface - Avancement - Montant de travaux - Montant d'etude - Partenaires - Programme - Concours - Information
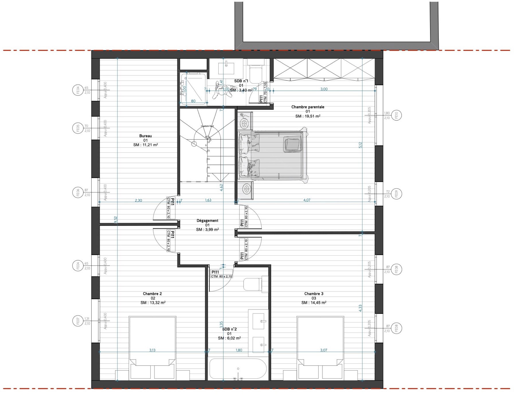
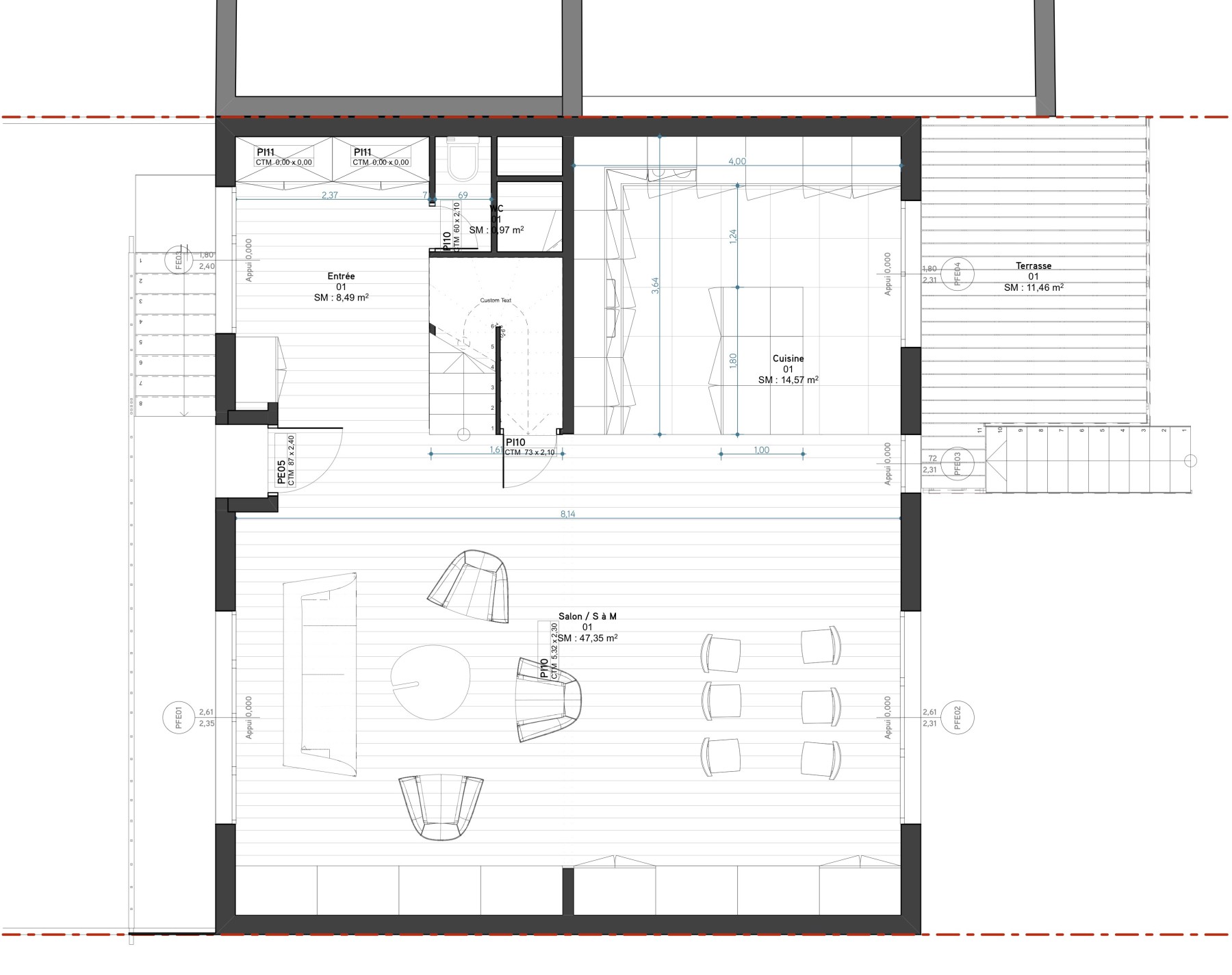
Dans un tissu pavillonnaire avec jardin spacieux, cette maison de constructeur des années 70 est réinvestie de fond en combles. Le développement des communes limitrophes parisiennes et l’ouverture règlementaire à la densification permettent d’imaginer une augmentation des surfaces, une actualisation du mode de vie et une amélioration importante de la qualité bâtie et environnementale. D’une maison choisie sur catalogue nous avons fait le choix de préserver la structure principale pour concevoir des espaces personnalisés, confortables et lumineux. La création de pièces entièrement traversantes permet d’orienter la maison vers le paysage du jardin pour en profiter désormais aussi depuis l’intérieur. Les façades et la toiture font l’objet d’une profonde métamorphose et confèrent à la maison une nouvelle esthétique architecturale.
A l'origine
Typologie d'une maison de constructeur des années 1970