Groupe scolaire 40 Arpents Etude de programmation et faisabilité pour un groupe scolaire

ProgrammationRénovationPg Etude de programmation et faisabilité pour un groupe scolaire . L Santeny . Mi Programmation .
* Localisation - Client - Date - Mission - Surface - Avancement - Montant de travaux - Montant d'etude - Partenaires - Programme - Concours - Information
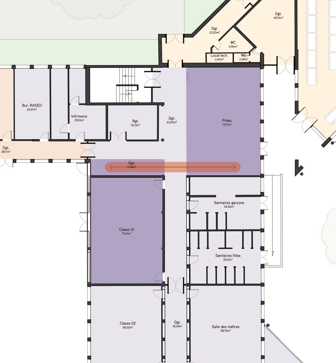
Étude de programmation et de faisabilité pour l’extension et la rénovation du groupe scolaire des 40 Arpents à Santeny. Réflexion autour des programmes, de leurs usages et leur articulation dans un bâtiment existant.
Extrait de scénario